ARCH 475: Architectural Design and Development
Fourth-Year Undergraduate Design Studio
Yun Kyu Yi, Fall 2018
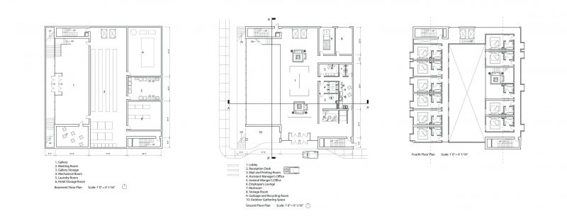
This boutique hotel is located on the northeast corner of E Washington Street and N Neil Street in Champaign, IL. A gallery space for local artists, University of Illinois students, and faculty is included in the program to to bring more people to the site, which suffers from a lack of social and cultural activity. To create a home-like atmosphere for hotel guests, the gable form is deployed throughout the building as an icon. The floor levels and orientations of each guest room differ to add to the playfulness in this hotel.
Building massing diagrams
Floor Plans
Elevation
Section
Model
Exterior rendering
Interior rendering
Interior rendering of hotel room
Exploded axon
HVAC diagram